Industrial & Power Systems

Pharmaceutical Projects

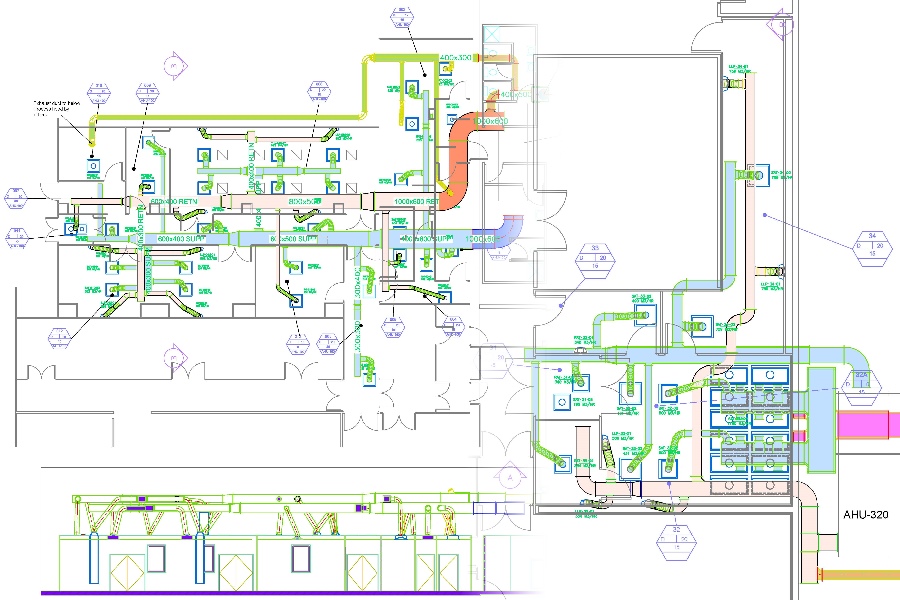
Medochemie

Injectables Manufacturing Facility. Complete Detailed Design, HVAC, Process Piping, Process Equipment.

Mundipharna

Purified Water Production System.
Detailed Design and Validation Services

Aegis 2

HVAC and Electrical FEED Design for new Production Areas.

Aegis 1

Upgrade and Renovation of Aegis 1 Pharmaceutical Factory, Mechanical and Electrical Installations.

Medochemie Penicillin

HVAC and Electrical FEED Design for new Production Areas.

Medochemie WFI System

Water for Injection Production System.
Nitrogen Blanketing System
Detailed Design and Validation Services.